Записаться на экскурсию
+7 (383) 209-64-47
30 мин. от м. «Заельцовская»

48-24КД, 52 м2

Застройщик: АВАНТАЖ
52 м2
от 6 333 600 ₽
Ипотека от 30 379 руб./мес.
Ипотека от 6%
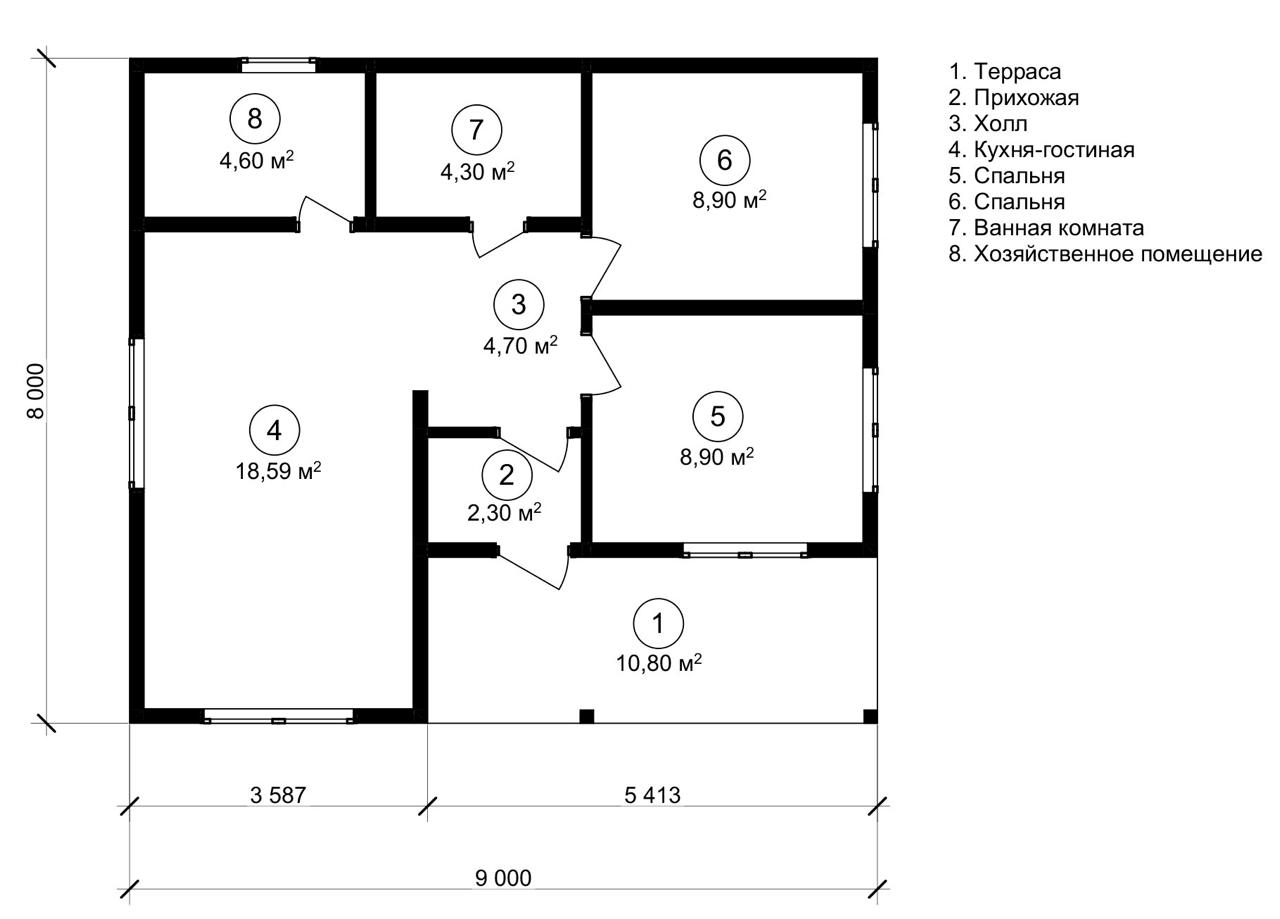
План коттеджа
2 спальни
Две спальни обеспечат личным пространством семью с одним или двумя детьми, позволяя всем членам семьи комфортно проводить время дома
СИП
Терраса 10,8 м²
White box
Утепление фасада
Отмостка
Снего задержатели
Септик
Электрика
Заземление
Газ. котел
Эл. котел
Бойлер
Тёплый пол
Водоочистка
Стяжка пола
Штукатурка стен
/
Утепление фасада
не требуется
Отмостка
Да
Снего задержатели
Да
Септик
Да
Электрика
Да
Заземление
Да
Газ. котел
Нет
Эл. котел
Да
Бойлер
Да
Тёплый пол
Да
Водоочистка
Нет

Стяжка пола
Да
Штукатурка стен
ГКЛ
Купить коттедж с участком в ипотеку
Параметры кредитования
Участок / дом / стоимость
0 сот.
52м2
6 333 600 руб.
Первый взнос, р.
Срок кредитования, лет
Предложения банков
от р./мес.
Ежемесячный платеж
от %
Процентная ставка
от р.
Сумма кредита
Другие коттеджи во FREEDOM VILLAGE
Павел Москалишин
Руководитель отдела продаж
Сформируем для вас персональное предложение
Записаться на экскурсию