Записаться на экскурсию
+7 (383) 209-64-47
30 мин. от м. «Заельцовская»

03-25КД, 70.7 м2

Застройщик: АВАНТАЖ
70.7 м2
от 8 158 500 ₽
Ипотека от 39 131 руб./мес.
Ипотека от 6%
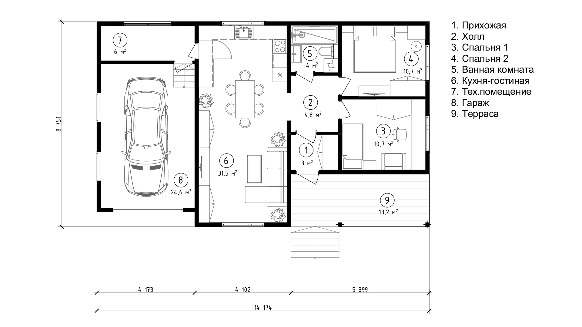
План коттеджа
3 спальни
Три спальни обеспечивают достаточное пространство для семьи, позволяя каждому члену иметь собственное место для отдыха и уединения. Это особенно важно для семей с детьми, где каждый ребенок может иметь свою комнату, что способствует развитию независимости и личного пространства
СИП
Терраса 13
Гараж 24,6
White box
Утепление фасада
Отмостка
Снего задержатели
Септик
Электрика
Заземление
Газ. котел
Эл. котел
Бойлер
Тёплый пол
Водоочистка
Стяжка пола
Штукатурка стен
/
Утепление фасада
не требуется
Отмостка
Да
Снего задержатели
Да
Септик
Да
Электрика
Да
Заземление
Да
Газ. котел
Нет
Эл. котел
Да
Бойлер
Да
Тёплый пол
Да
Водоочистка
Нет

Стяжка пола
Да
Штукатурка стен
ГКЛ
Купить коттедж с участком в ипотеку
Параметры кредитования
Участок / дом / стоимость
0 сот.
70.7м2
8 158 500 руб.
Первый взнос, р.
Срок кредитования, лет
Предложения банков
от р./мес.
Ежемесячный платеж
от %
Процентная ставка
от р.
Сумма кредита
Другие коттеджи во FREEDOM VILLAGE
Павел Москалишин
Руководитель отдела продаж
Сформируем для вас персональное предложение
Записаться на экскурсию